Description
-
Description:
REFERÈNCIA 102021-MATARO,CENTRE
Show all description
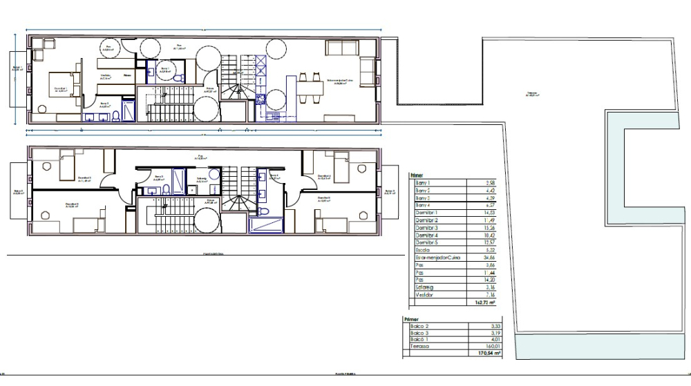
Propera construcció. Descobreix aquest espectacular dúplex en ple centre de Mataró, una joia única que combina amplitud, llum natural i espais exteriors excepcionals. Amb 162m² d'habitatge i 170m² de patis privats, aquesta propietat ofereix una qualitat de vida inigualable en una de les millors zones de la ciutat.
Característiques principals:
✅ 5 habitacions àmplies, ideals per a famílies grans o per a disposar de despatx i zona de jocs.
✅ 4 banys complets, per a major comoditat i privacitat.
✅ 3 patis privats que sumen un total de 170m², perfectes per a gaudir a l'aire lliure, crear zones de relax o fins i tot instal·lar una barbacoa.
✅ Distribució funcional i espais lluminosos en totes les estades.
✅ Ubicació privilegiada en el centre de Mataró, amb tots els serveis, comerços i transport públic a un pas.
Si busques un habitatge amb espais exteriors amplis en una ubicació immillorable, aquesta és la teva oportunitat! Contacta'ns per a més informació i agenda la teva visita.
PREU 590.000€ impostos i despeses no incloses
Amenities & Features
- Features: